Description
Product specification
| Building material | 44mm slow grown spruce/pine |
| Wall thickness | 44mm tongue&grove log |
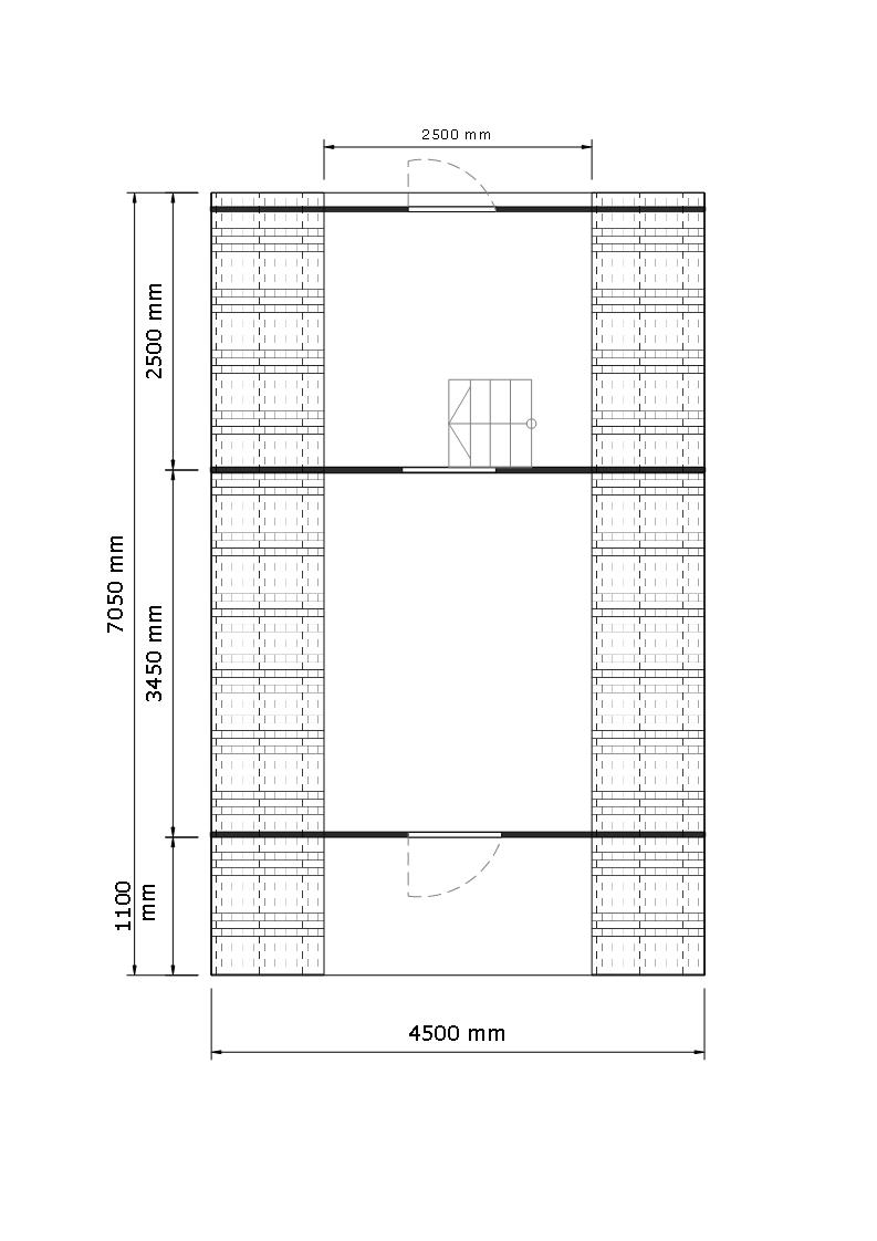
| External dimmensions (WxD) | 4500x7050mm |
| Internal area | 25.2m² |
| Ridge height | 5670mm |
| Internal doors | x1 – 850x1920mm (wooden, included) |
| External doors | x1 – 1610x1920mm double glassed (wooden or PVC) x1 – 700x1920mm double glassed (wooden or PVC) |
| Windows | x1- 1380x1050mm double glassed (wooden or PVC) x1- 700x1050mm double glassed (wooden or PVC) |
| Total number of rooms | 4 |
| Roof | 18mm tongue&groove boards |
| Roof overhang(Front, Side, Back) | 1100mm;100mm |
| Floor bearers | 45x50mm (impregnated) |
| Floor | 18mm tongue&grove boards |
| Number of floors | 2 |















