* Photos and videos are for illustrative purposes only and may differ from the actual product. Products come untreated and natural.
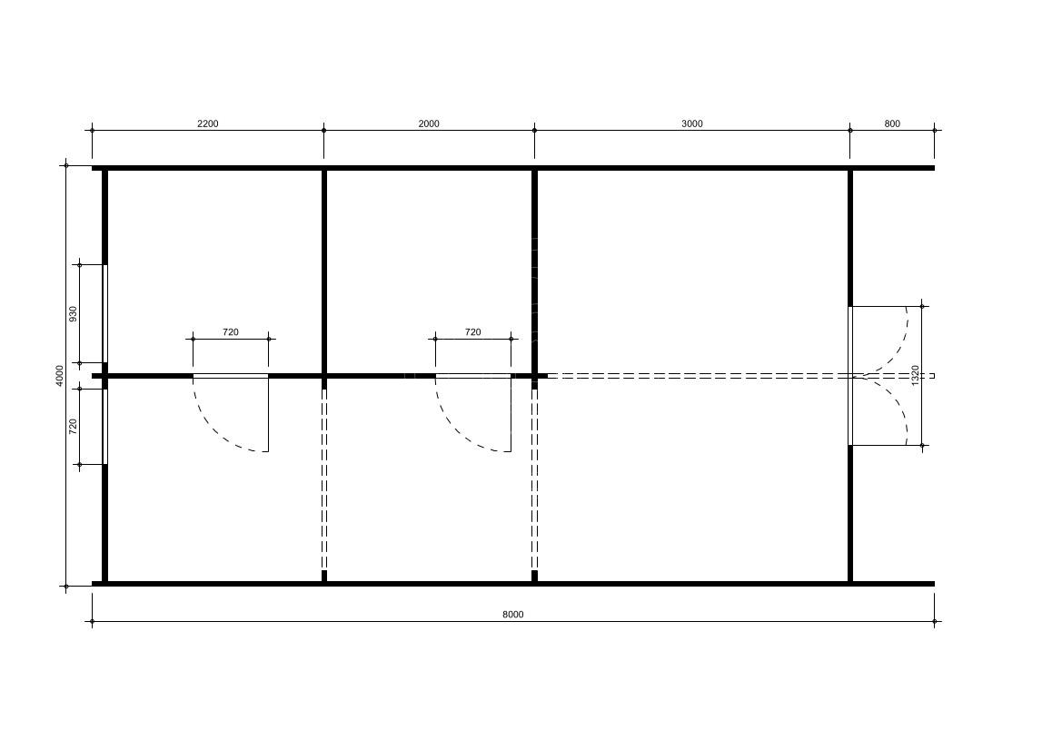
IR-030 | 32m² Glamping Pod Ireland | 4x8m | 2 Bedrooms
12,000.00 €
Please note: All prices displayed on our website are inclusive of VAT.
Important Information
Delivery in 2-4 weeks
10-year warranty
Included in the price: wooden building kit (walls, roof, floor), double glazed wooden doors & windows, hardware kit, delivery, offloading, VAT.
Found it cheaper elsewhere? We'll match the price before you buy!
Just tell us your price.
Need a Custom Offer?
Contact us to discuss additional options and get a final price quote tailored to your specific needs.
CONTACT USQualified Installation Services
We collaborate with experienced, local installation partners who are ready to set up your new timber structure efficiently and professionally.
Easy DIY Assembly
Most products include a comprehensive, easy-to-follow manual designed for those with basic construction or assembly experience.
Safety & Preparation
We strongly recommend reading all instructions carefully before starting; please note that we are not responsible for any damage or injury caused by incorrect installation.
Dedicated Expert Support
If you have questions or encounter any difficulties during assembly, our specialists are available Monday to Friday (8am–5pm) to provide assistance.
Premium Craftsmanship
We combine top-tier certified timber with expert construction techniques to ensure every project meets the highest quality standards.
All-Inclusive Pricing
Experience complete financial clarity with detailed quotes that guarantee no hidden costs or unexpected extras.
Eco-Friendly Efficiency
Our wooden structures are designed for maximum thermal performance, offering a sustainable and cost-effective living environment.
Best Value Guarantee
We are committed to providing the most competitive rates and will aim to match any comparable offer you find.
Fully Compliant Designs
Every building is engineered to strictly adhere to current building regulations and safety specifications.
Tailored Expert Support
From initial sketches to the final build, our team provides dedicated assistance to bring your unique vision to life.
Flexible Shipping Options
We organize delivery for all store items at standard rates, ensuring products are safely unloaded at your kerbside.
Specialist Logistics
Custom delivery solutions are available for remote areas or international shipping outside our standard zones upon request.
Rapid Turnaround
In-stock items arrive within 2-4 weeks, while custom-built or out-of-stock products are delivered in 8-12 weeks.
Professional Handling
Products are delivered in large trucks and arrive in weatherproof flat packs, ready for a swift and safe installation.











